
Dachgeschosswohnung in Hattingen
Charmante 3-Zimmer-Wohnung mit Balkon in Hattingen – ideal für Paare & Homeoffice
auf der Karte ansehenUmzugskosten berechnen
- Kaltmiete
- 750 €
- Zimmer
- 3.5
- Fläche
- 81 m²
16 Aufrufe
Objekt-ID: 38762226
| Objekttyp: | Dachgeschosswohnung |
| Zimmer: | 3.5 |
| Größe: | 81.00 m² |
| Etage: | 2 von 2 |
| Frei ab: | keine Angabe |
Preise & Kosten
| Kaltmiete: | 750 € |
| Nebenkosten: | 430 € |
| Gesamtmiete: |
1.180 € |
| Preis/m²: | 9,26 € |
| Mit Mietspiegel Hattingen vergleichen | |
| Kaution: | k.A. |
Immobilie
Balkon
Einbauküche
Keller
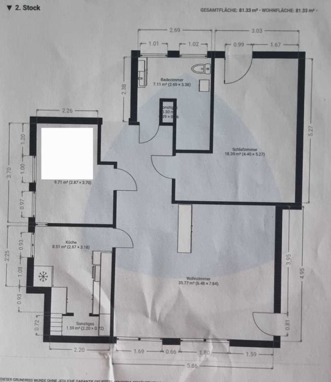
Objektbeschreibung
Diese schöne und gepflegte Wohnung befindet sich in der 2. Etage eines ruhigen Zweifamilienhauses in Hattingen. Auf rund 81 m² Wohnfläche bietet sie ein durchdachtes Raumkonzept und viel Platz zum Wohlfühlen.
Die Wohnung verfügt über:
ein großzügiges Wohnzimmer mit Zugang zum Balkon
ein helles Schlafzimmer
ein zusätzliches Zimmer, ideal als Büro oder Gästezimmer
eine moderne Einbauküche, die bereits im Mietpreis enthalten ist
ein gepflegtes Badezimmer
sowie einen langen, einladenden Flur, der die Räume miteinander verbindet
Der Balkon lädt zum Entspannen ein und bietet Platz für gemütliche Stunden an der frischen Luft.
Die Wohnung ist ab sofort bezugsfrei und eignet sich perfekt für Paare, die ein ruhiges Zuhause mit Platz fürs Homeoffice und viel Stauraum suchen
Die Wohnung verfügt über:
ein großzügiges Wohnzimmer mit Zugang zum Balkon
ein helles Schlafzimmer
ein zusätzliches Zimmer, ideal als Büro oder Gästezimmer
eine moderne Einbauküche, die bereits im Mietpreis enthalten ist
ein gepflegtes Badezimmer
sowie einen langen, einladenden Flur, der die Räume miteinander verbindet
Der Balkon lädt zum Entspannen ein und bietet Platz für gemütliche Stunden an der frischen Luft.
Die Wohnung ist ab sofort bezugsfrei und eignet sich perfekt für Paare, die ein ruhiges Zuhause mit Platz fürs Homeoffice und viel Stauraum suchen
Lage
Tippelstr45525 Hattingen
Hattingen
Der aktuelle durchschnittliche Quadratmeterpreis beträgt 9,01 €/m² in Hattingen.
Mit Mietspiegel
Hattingen vergleichen
Was kostet dein Umzug?
Du planst einen Umzug? Finde jetzt die günstigste Umzugsfirma in deiner Region!
Umzugskosten berechnen Schütze dich vor Betrug!
Leiste keinerlei Zahlung im Vorraus!
Beachte unsere Sicherheitshinweise zum Thema Immobilienbetrug und lies, woran du solche Anzeigen erkennen kannst und wie du dich vor Betrügern schützt.
Anzeige melden Beachte unsere Sicherheitshinweise zum Thema Immobilienbetrug und lies, woran du solche Anzeigen erkennen kannst und wie du dich vor Betrügern schützt.
*Anzeige
Ähnliche Wohnungen bei ImmoScout24
Hattingen
- Miete
- 600 €
- Zimmer
- 3.5 Zi.
- Fläche
- 75 Zi.
Weitere Ergebnisse für:
Wohnungen
Hattingen;
Immobilien
Hattingen;
Haus mieten
Hattingen;
WG Zimmer
Hattingen;
Wohnung
Hattingen kaufen;
Haus kaufen
Hattingen;
Immobilienpreise
Hattingen Mietspiegel
Hattingen wohnungsboerse.net übernimmt keine Gewähr für von Dritten gemachte Angaben