
Sonstige mieten in Mülheim an der Ruhr-Mitte
Exklusives Penthouse mit Dachterrasse und 5 Zimmern im Gewerbegebiet
auf der Karte ansehenUmzugskosten berechnen
- Kaltmiete
- 2.375 €
- Zimmer
- 5
- Fläche
- 250 m²
1 Aufrufe
Objekt-ID: 38779825
| Objekttyp: | Sonstige |
| Zimmer: | 5 |
| Größe: | 250.00 m² |
| Grundstücksfläche: | 250,00 m² |
| Frei ab: | 1.12.2025 |
Preise & Kosten
| Kaltmiete: | 2.375 € |
| Nebenkosten: | 150 € |
| Gesamtmiete: |
2.525 € |
| Preis/m²: | 9,50 € |
| Mit Mietspiegel Mülheim an der Ruhr vergleichen | |
| Kaution: | k.A. |
Immobilie
Terrasse
Dachterrasse
Tiere erlaubt
| Befeuerungsart: | Gas |
Objektbeschreibung
Dieses außergewöhnliche Penthouse erstreckt sich über das erste und zweite Obergeschoss eines Gebäudes im Gewerbegebiet und bietet eine gelungene Kombination aus repräsentativem Ambiente, moderner Ausstattung und großzügigen Freiflächen. Der Zugang erfolgt über eine auf dem Vorhof außenliegende Steintreppe. Das gesamte Haus wird über eine Fußbodenheizung beheizt.
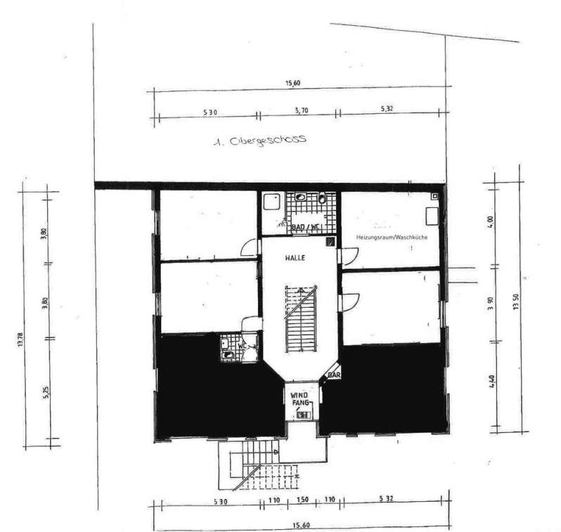
1. Obergeschoss:
Der großzügige Eingangsbereich führt in eine helle Halle, die als zentraler Verteiler zu den weiteren Räumen dient. Hier befinden sich mehrere individuell nutzbare Zimmer, die sich sowohl als Schlafzimmer, Büroräume oder Gästezimmer eignen.
Ein stilvoll ausgestattetes Badezimmer mit Dusche, Badewanne, zwei Waschbecken, Bidet und WC sowie ein zusätzlicher Heizungs- und Hauswirtschaftsraum runden diese Etage funktional ab.
Auf dieser Ebene sind die Räume mit hochwertigem Vinylboden ausgestattet.
2. Obergeschoss (Penthouse-Ebene):
Über die innenliegende zentrale Treppe gelangt man in das lichtdurchflutete Dachgeschoss mit offener Küche sowie Ess- und Wohnbereich. Die Einbauküche kann gegen eine geringe Abschlagzahlung übernommen oder ausgetauscht werden.
Von hier aus öffnet sich der Zugang zur weitläufigen Dachterrasse – perfekt für entspannte Stunden im Freien oder stilvolle Empfänge mit Blick über das Gewerbegebiet.
Ebenfalls befindet sich auf dieser Ebene ein weiterer Raum, welcher als Büro oder Schlafzimmer genutzt werden kann.
Ein zusätzlicher Abstell- bzw. Lagerraum mit Dachschräge bietet praktischen Stauraum.
Ein separates WC ist ebenfalls vorhanden.
Auf Wunsch kann der vorhandene Kamin wieder in Betrieb genommen werden.
Im gesamten Obergeschoss befinden sich ein hochwertiger Marmorfliesen-Boden.
1. Obergeschoss:
Der großzügige Eingangsbereich führt in eine helle Halle, die als zentraler Verteiler zu den weiteren Räumen dient. Hier befinden sich mehrere individuell nutzbare Zimmer, die sich sowohl als Schlafzimmer, Büroräume oder Gästezimmer eignen.
Ein stilvoll ausgestattetes Badezimmer mit Dusche, Badewanne, zwei Waschbecken, Bidet und WC sowie ein zusätzlicher Heizungs- und Hauswirtschaftsraum runden diese Etage funktional ab.
Auf dieser Ebene sind die Räume mit hochwertigem Vinylboden ausgestattet.
2. Obergeschoss (Penthouse-Ebene):
Über die innenliegende zentrale Treppe gelangt man in das lichtdurchflutete Dachgeschoss mit offener Küche sowie Ess- und Wohnbereich. Die Einbauküche kann gegen eine geringe Abschlagzahlung übernommen oder ausgetauscht werden.
Von hier aus öffnet sich der Zugang zur weitläufigen Dachterrasse – perfekt für entspannte Stunden im Freien oder stilvolle Empfänge mit Blick über das Gewerbegebiet.
Ebenfalls befindet sich auf dieser Ebene ein weiterer Raum, welcher als Büro oder Schlafzimmer genutzt werden kann.
Ein zusätzlicher Abstell- bzw. Lagerraum mit Dachschräge bietet praktischen Stauraum.
Ein separates WC ist ebenfalls vorhanden.
Auf Wunsch kann der vorhandene Kamin wieder in Betrieb genommen werden.
Im gesamten Obergeschoss befinden sich ein hochwertiger Marmorfliesen-Boden.
Lage
45473 Mülheim an der RuhrMülheim an der Ruhr Mitte
Der aktuelle durchschnittliche Quadratmeterpreis beträgt 11,91 €/m² in Mülheim an der Ruhr - Mitte. Der durchschnittliche Quadratmeterpreis in Mülheim an der Ruhr liegt derzeit bei 15,16 €/m².
Mit Mietspiegel
Mülheim an der Ruhr vergleichen
Was kostet dein Umzug?
Du planst einen Umzug? Finde jetzt die günstigste Umzugsfirma in deiner Region!
Umzugskosten berechnen Schütze dich vor Betrug!
Leiste keinerlei Zahlung im Vorraus!
Beachte unsere Sicherheitshinweise zum Thema Immobilienbetrug und lies, woran du solche Anzeigen erkennen kannst und wie du dich vor Betrügern schützt.
Anzeige melden Beachte unsere Sicherheitshinweise zum Thema Immobilienbetrug und lies, woran du solche Anzeigen erkennen kannst und wie du dich vor Betrügern schützt.
*Anzeige
Ähnliche Häuser bei ImmoScout24
Mülheim an der Ruhr-Mitte
- Miete
- 2.250 €
- Zimmer
- 5 Zi.
- Fläche
- 240 Zi.
Weitere Ergebnisse für:
Wohnungen
Mülheim an der Ruhr;
Immobilien
Mülheim an der Ruhr;
Haus mieten
Mülheim an der Ruhr;
WG Zimmer
Mülheim an der Ruhr;
Wohnung
Mülheim an der Ruhr kaufen;
Haus kaufen
Mülheim an der Ruhr;
Immobilienpreise
Mülheim an der Ruhr Mietspiegel
Mülheim an der Ruhr wohnungsboerse.net übernimmt keine Gewähr für von Dritten gemachte Angaben