
Etagenwohnung in Irrel
wunderschöne Wohnung im Neubau in Toplage in Irrel
auf der Karte ansehenUmzugskosten berechnen
- Kaltmiete
- 816 €
- Zimmer
- 2
- Fläche
- 68 m²
9 Aufrufe
Objekt-ID: 38780618
| Objekttyp: | Etagenwohnung |
| Zimmer: | 2 |
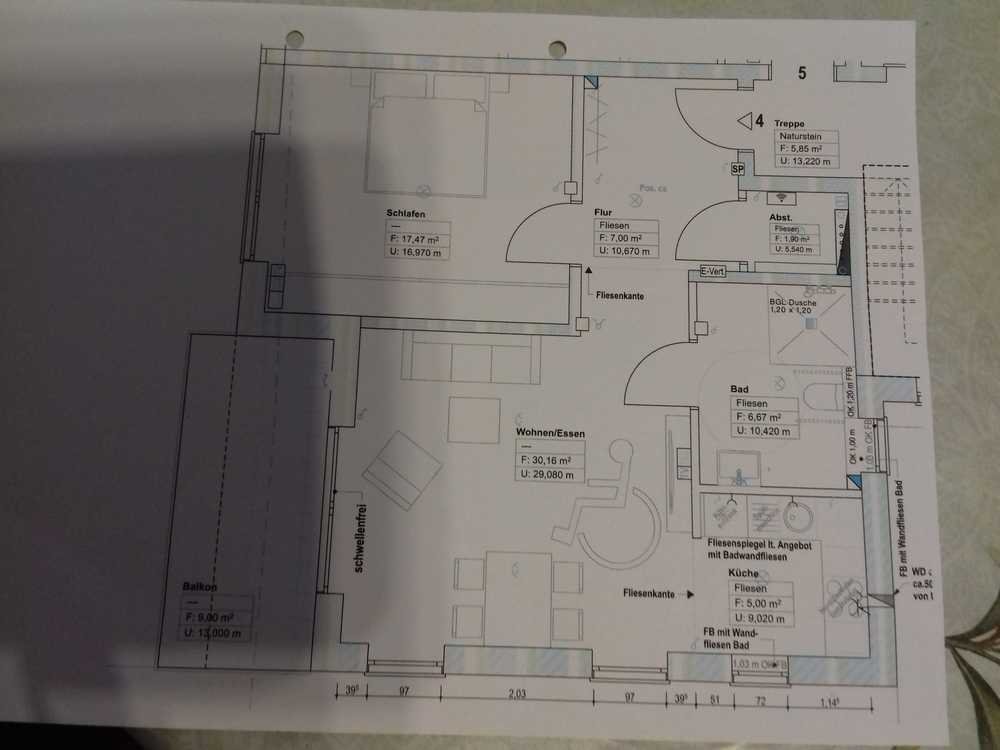
| Größe: | 68.00 m² |
| Etage: | 2 von 3 |
| Frei ab: | 01.02.2026 |
Preise & Kosten
| Kaltmiete: | 816 € |
| Nebenkosten: | 280 € |
| Gesamtmiete: |
1.096 € |
| Preis/m²: | 12,00 € |
| Mit Mietspiegel Irrel vergleichen | |
| Kaution: | k.A. |
Immobilie
Balkon
Einbauküche
Keller
Neubau
| Baujahr: | 2021 |
| Befeuerungsart: | Strom |
| Energieausweis: | Energieausweis in Vorbereitung |
Objektbeschreibung
Der Neubau wird zurzeit in Irrel in bester Lage errichtet. Er liegt im Süd-Westen, sodass er hell durchflutet ist. Das Haus ist nach modernsten Richtlinien energieeffizient gebaut worden. Das Haus besitzt einen Aufzug. Im Keller ist der Waschraum, der von allen Mietern zu nutzen ist.
Lage
Busserweg54666 Irrel
Irrel
Der aktuelle durchschnittliche Quadratmeterpreis beträgt 11,94 €/m² in Irrel.
Mit Mietspiegel
Irrel vergleichen
Was kostet dein Umzug?
Du planst einen Umzug? Finde jetzt die günstigste Umzugsfirma in deiner Region!
Umzugskosten berechnen Schütze dich vor Betrug!
Leiste keinerlei Zahlung im Vorraus!
Beachte unsere Sicherheitshinweise zum Thema Immobilienbetrug und lies, woran du solche Anzeigen erkennen kannst und wie du dich vor Betrügern schützt.
Anzeige melden Beachte unsere Sicherheitshinweise zum Thema Immobilienbetrug und lies, woran du solche Anzeigen erkennen kannst und wie du dich vor Betrügern schützt.
*Anzeige
Ähnliche Wohnungen bei ImmoScout24
Irrel
- Miete
- 700 €
- Zimmer
- 2 Zi.
- Fläche
- 60 Zi.
Anbieter
Weitere Ergebnisse für:
Wohnungen
Irrel;
Immobilien
Irrel;
Haus mieten
Irrel;
WG Zimmer
Irrel;
Wohnung
Irrel kaufen;
Haus kaufen
Irrel;
Immobilienpreise
Irrel Mietspiegel
Irrel wohnungsboerse.net übernimmt keine Gewähr für von Dritten gemachte Angaben