
Dachgeschosswohnung in Lebach
Helle 4-Zimmer, neuwertig renovierte Dachgeschosswohnung in Lebach
auf der Karte ansehenUmzugskosten berechnen
- Kaltmiete
- 760 €
- Zimmer
- 4
- Fläche
- 85 m²
6 Aufrufe
Objekt-ID: 38801089
| Objekttyp: | Dachgeschosswohnung |
| Zimmer: | 4 |
| Größe: | 85.00 m² |
| Etage: | 1 von 1 |
| Frei ab: | 1.12.2025 |
Preise & Kosten
| Kaltmiete: | 760 € |
| Nebenkosten: | 150 € |
| Gesamtmiete: |
910 € |
| Preis/m²: | 8,94 € |
| Mit Mietspiegel Lebach vergleichen | |
| Kaution: | k.A. |
Immobilie
Garten
Einbauküche
Keller
Tiere erlaubt
| Baujahr: | 1972 |
Objektbeschreibung
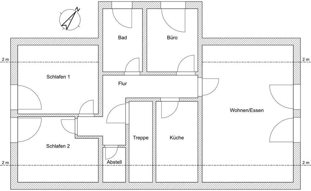
Diese attraktive Dachgeschosswohnung kann zum 01.12.2025 bezogen werden. Zu dem Apartment zählen vier Zimmer (zwei Schlafzimmer, Büro, großes Wohn- und Esszimmer), außerdem Küche, Bad, ein Abstellraum mit insgesamt ca. 85 m² Grundfläche und ein Kellerraum. Der große Garten des Hauses kann gerne mitbenutzt werden.
Die Wohnung verfügt über eine Einbauküche sowie ein modernes Bad mit Dusche. Im Keller des Hauses stehen Ihnen eigene Anschlüsse für Waschmaschine und Trockner zur Verfügung.
Die Wohnung wurde umfangreich renoviert und ist mit Laminat ausgelegt sowie mit dreifach verglasten Wärmedämmfenstern ausgestattet. Das charakteristische Dachgeschoss mit seinen Dachschrägen verleiht der Wohnung einen besonderen Charme. Im Bad ist eine Dusche mit einer hochwertigen Duschabtrennung aus Glas eingebaut.
Für die Anmietung setzen wir eine positive Bonitätsprüfung sowie Einkommensnachweise aus ungekündigtem Arbeitsverhältnis voraus. Selbstständige reichen bitte die letzten drei Steuerbescheide ein.
Die Wohnung verfügt über eine Einbauküche sowie ein modernes Bad mit Dusche. Im Keller des Hauses stehen Ihnen eigene Anschlüsse für Waschmaschine und Trockner zur Verfügung.
Die Wohnung wurde umfangreich renoviert und ist mit Laminat ausgelegt sowie mit dreifach verglasten Wärmedämmfenstern ausgestattet. Das charakteristische Dachgeschoss mit seinen Dachschrägen verleiht der Wohnung einen besonderen Charme. Im Bad ist eine Dusche mit einer hochwertigen Duschabtrennung aus Glas eingebaut.
Für die Anmietung setzen wir eine positive Bonitätsprüfung sowie Einkommensnachweise aus ungekündigtem Arbeitsverhältnis voraus. Selbstständige reichen bitte die letzten drei Steuerbescheide ein.
Lage
Schubertstraße66822 Lebach
Lebach
Der aktuelle durchschnittliche Quadratmeterpreis beträgt 8,56 €/m² in Lebach.
Mit Mietspiegel
Lebach vergleichen
Was kostet dein Umzug?
Du planst einen Umzug? Finde jetzt die günstigste Umzugsfirma in deiner Region!
Umzugskosten berechnen Schütze dich vor Betrug!
Leiste keinerlei Zahlung im Vorraus!
Beachte unsere Sicherheitshinweise zum Thema Immobilienbetrug und lies, woran du solche Anzeigen erkennen kannst und wie du dich vor Betrügern schützt.
Anzeige melden Beachte unsere Sicherheitshinweise zum Thema Immobilienbetrug und lies, woran du solche Anzeigen erkennen kannst und wie du dich vor Betrügern schützt.
*Anzeige
Ähnliche Wohnungen bei ImmoScout24
Lebach
- Miete
- 650 €
- Zimmer
- 4 Zi.
- Fläche
- 75 Zi.
Weitere Ergebnisse für:
Wohnungen
Lebach;
Immobilien
Lebach;
Haus mieten
Lebach;
WG Zimmer
Lebach;
Wohnung
Lebach kaufen;
Haus kaufen
Lebach;
Immobilienpreise
Lebach Mietspiegel
Lebach wohnungsboerse.net übernimmt keine Gewähr für von Dritten gemachte Angaben