
Erdgeschosswohnung in Erftstadt
EG-Wohnung in Erftstadt-Ahrem
auf der Karte ansehenUmzugskosten berechnen
- Kaltmiete
- 975 €
- Zimmer
- 2
- Fläche
- 86 m²
3 Aufrufe
Objekt-ID: 38804950
| Objekttyp: | Erdgeschosswohnung |
| Zimmer: | 2 |
| Größe: | 86.00 m² |
| Etage: | 1 von 2 |
| Frei ab: | 1.2.2026 |
Preise & Kosten
| Kaltmiete: | 975 € |
| Nebenkosten: | 275 € |
| Gesamtmiete: |
1.250 € |
| Preis/m²: | 11,34 € |
| Mit Mietspiegel Erftstadt vergleichen | |
| Kaution: | k.A. |
Immobilie
Balkon
Garten
Keller
Tiere erlaubt
| Baujahr: | 1970 |
| Befeuerungsart: | Zentralheizung |
| Energieausweis: | Energieausweis in Vorbereitung |
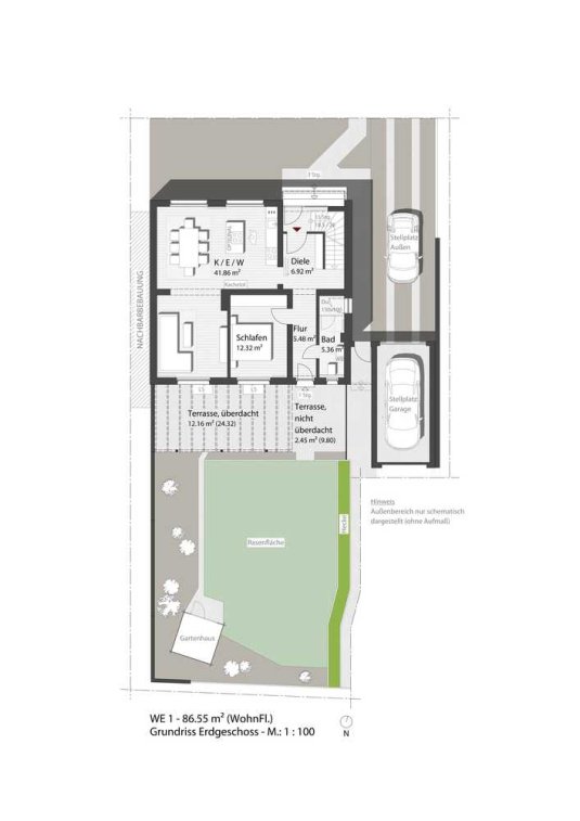
Objektbeschreibung
Renovierter Altbau in ruhiger Feldrandlage - Erstbezug nach Renovierung
� ca. 86 m² Wohnfläche (72 Innen + 14 Außen)
�️ 2 Zimmer (1 Schlafzimmer + großer Wohn-/Essbereich mit Kachelofen)
� Privater Garten mit Terrasse & Überdachung
� 2 Stellplätze (Garage + Außenstellplatz)
� Ca. 45 m² private Kellerräume
� Bezug voraussichtlich ab 01.02.2026
+++Derzeit im Umbau+++
� ca. 86 m² Wohnfläche (72 Innen + 14 Außen)
�️ 2 Zimmer (1 Schlafzimmer + großer Wohn-/Essbereich mit Kachelofen)
� Privater Garten mit Terrasse & Überdachung
� 2 Stellplätze (Garage + Außenstellplatz)
� Ca. 45 m² private Kellerräume
� Bezug voraussichtlich ab 01.02.2026
+++Derzeit im Umbau+++
Lage
50374 ErftstadtErftstadt
Der aktuelle durchschnittliche Quadratmeterpreis beträgt 11,89 €/m² in Erftstadt.
Mit Mietspiegel
Erftstadt vergleichen
Was kostet dein Umzug?
Du planst einen Umzug? Finde jetzt die günstigste Umzugsfirma in deiner Region!
Umzugskosten berechnen Schütze dich vor Betrug!
Leiste keinerlei Zahlung im Vorraus!
Beachte unsere Sicherheitshinweise zum Thema Immobilienbetrug und lies, woran du solche Anzeigen erkennen kannst und wie du dich vor Betrügern schützt.
Anzeige melden Beachte unsere Sicherheitshinweise zum Thema Immobilienbetrug und lies, woran du solche Anzeigen erkennen kannst und wie du dich vor Betrügern schützt.
*Anzeige
Ähnliche Wohnungen bei ImmoScout24
Erftstadt
- Miete
- 850 €
- Zimmer
- 2 Zi.
- Fläche
- 80 Zi.
Weitere Ergebnisse für:
Wohnungen
Erftstadt;
Immobilien
Erftstadt;
Haus mieten
Erftstadt;
WG Zimmer
Erftstadt;
Wohnung
Erftstadt kaufen;
Haus kaufen
Erftstadt;
Immobilienpreise
Erftstadt Mietspiegel
Erftstadt wohnungsboerse.net übernimmt keine Gewähr für von Dritten gemachte Angaben