
Einfamilienhaus mieten in Bad Sassendorf
Fachwerkhaus im Ortskern Lohne mit Blick auf Lohner Teich
auf der Karte ansehenUmzugskosten berechnen
- Kaltmiete
 - 1.650 €
 
- Zimmer
 - 6
 
- Fläche
 - 160 m²
 
                    4 Aufrufe
                    
                
                Objekt-ID: 38817792
| Objekttyp: | Einfamilienhaus | 
| Zimmer: | 6 | 
| Größe: | 160.00 m² | 
| Grundstücksfläche: | 700,00 m² | 
| Frei ab: | 2.11.2025 | 
Preise & Kosten
| Kaltmiete: | 1.650 € | 
| Nebenkosten: | 525 € | 
| Gesamtmiete: | 
                                                                                                                    2.175 € | 
                            
| Preis/m²: | 10,31 € | 
| Mit Mietspiegel Bad Sassendorf vergleichen | |
| Kaution: | k.A. | 
Immobilie
                                    Einbauküche
                                
                                                            
                                    Tiere erlaubt
                                
                                                    | Baujahr: | 1996 | 
| Befeuerungsart: | Gas | 
| Energieausweis: | Energieausweis nicht notwendig (Denkmalschutz) | 
Objektbeschreibung
                            Objektbeschreibung: 
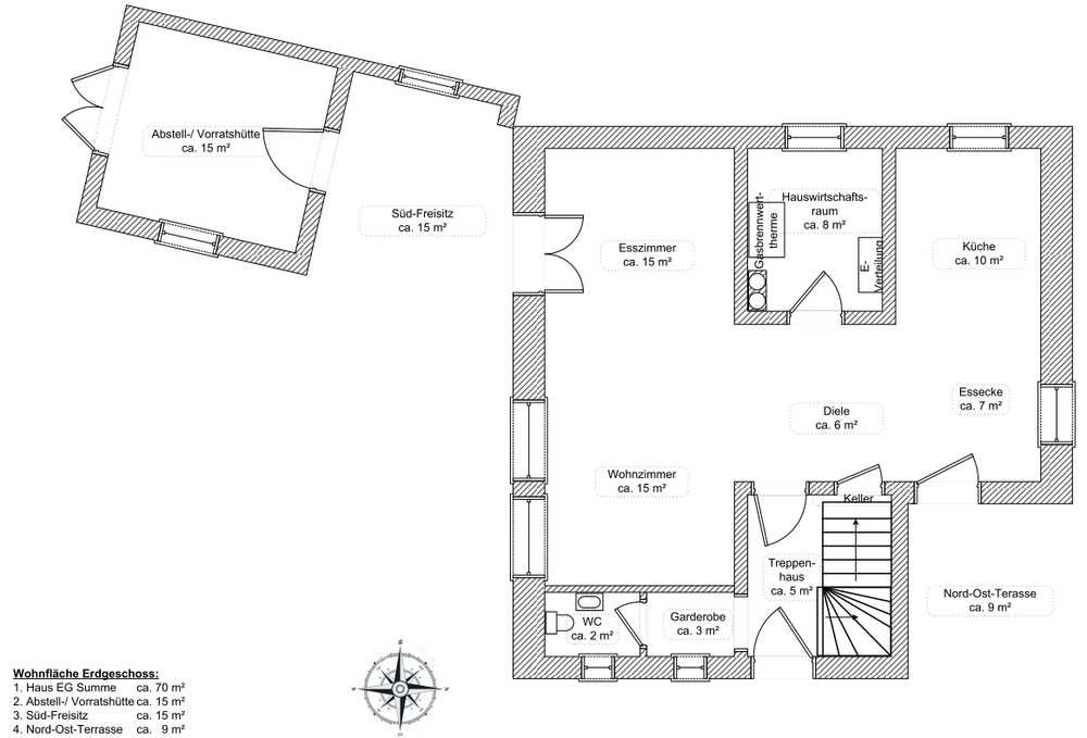
Dieses stilvolle Einfamilienhaus im historischen Fachwerkstil bietet modernen Wohnkomfort in ruhiger, zentraler Lage. Das Haus wurde 1995 umfassend kernsaniert – inklusive Austausch aller Innen- und Außenwände, neuer Grund- und Etagendecken aus Stahlbeton sowie energieeffizienter Außenwände (40–60 cm). So genießen Sie niedrige Heizkosten und im Sommer angenehm kühle Räume. Viel Wert wurde bei der Kernsanierung daraufgelegt, einen optimalen Mix aus Erhalt des Fachwerkflairs, aber auch die Räumlichkeiten mit max. Fensterflächen lichtstark zu durchfluten.
Im Oktober 2025 wurde im OG und DG ein hochwertiger Vinyl-Boden eingebaut und die Innenwände komplett geweisselt.
Das Haus erstreckt sich über drei Etagen mit insgesamt sechs großzügigen, hellen Zimmern. Auf jeder Etage befindet sich mindestens ein WC, das Dachgeschoss verfügt zudem über ein separates Gästezimmer mit eigenem Bad. Jedes Zimmer ist mit Fenstern ausgestattet und bietet Ausblick auf den idyllischen Lohner Teich oder die umliegende Natur.
Ausstattung: Das Herzstück des Hauses bildet das weitläufige Wohn- und Esszimmer im Erdgeschoss – lichtdurchflutet, offen und mit Blick auf den Teich. Auf der gegenüberliegenden Seite befindet sich die moderne, helle Küche mit zweizeiliger Einbauküche und gemütlicher Essecke. Im Erdgeschoss sorgt eine Fußbodenheizung für behagliche Wärme, während in den oberen Etagen moderne Heizkörper installiert sind. Die Gas-Brennwerttherme gewährleistet effiziente Energieversorgung. Das EG und die Bäder /WC sind gefliest, Schlaf- und Arbeitszimmer mit neuem Vinyl ausgestattet. Das Hauptbad im Obergeschoss verfügt über Badewanne, Dusche, WC und Waschtisch; das Gäste-Bad im Dachgeschoss über Dusche und WC. Ein praktischer Hauswirtschaftsraum im Erdgeschoss bietet Platz für Waschmaschine, Trockner sowie Heiz- und Elektrotechnik. Zudem steht eine überdachte Abstellhütte (ca. 15 m²) zur Verfügung – ideal für Vorräte oder Gartengeräte.
                                                    
                                            Dieses stilvolle Einfamilienhaus im historischen Fachwerkstil bietet modernen Wohnkomfort in ruhiger, zentraler Lage. Das Haus wurde 1995 umfassend kernsaniert – inklusive Austausch aller Innen- und Außenwände, neuer Grund- und Etagendecken aus Stahlbeton sowie energieeffizienter Außenwände (40–60 cm). So genießen Sie niedrige Heizkosten und im Sommer angenehm kühle Räume. Viel Wert wurde bei der Kernsanierung daraufgelegt, einen optimalen Mix aus Erhalt des Fachwerkflairs, aber auch die Räumlichkeiten mit max. Fensterflächen lichtstark zu durchfluten.
Im Oktober 2025 wurde im OG und DG ein hochwertiger Vinyl-Boden eingebaut und die Innenwände komplett geweisselt.
Das Haus erstreckt sich über drei Etagen mit insgesamt sechs großzügigen, hellen Zimmern. Auf jeder Etage befindet sich mindestens ein WC, das Dachgeschoss verfügt zudem über ein separates Gästezimmer mit eigenem Bad. Jedes Zimmer ist mit Fenstern ausgestattet und bietet Ausblick auf den idyllischen Lohner Teich oder die umliegende Natur.
Ausstattung: Das Herzstück des Hauses bildet das weitläufige Wohn- und Esszimmer im Erdgeschoss – lichtdurchflutet, offen und mit Blick auf den Teich. Auf der gegenüberliegenden Seite befindet sich die moderne, helle Küche mit zweizeiliger Einbauküche und gemütlicher Essecke. Im Erdgeschoss sorgt eine Fußbodenheizung für behagliche Wärme, während in den oberen Etagen moderne Heizkörper installiert sind. Die Gas-Brennwerttherme gewährleistet effiziente Energieversorgung. Das EG und die Bäder /WC sind gefliest, Schlaf- und Arbeitszimmer mit neuem Vinyl ausgestattet. Das Hauptbad im Obergeschoss verfügt über Badewanne, Dusche, WC und Waschtisch; das Gäste-Bad im Dachgeschoss über Dusche und WC. Ein praktischer Hauswirtschaftsraum im Erdgeschoss bietet Platz für Waschmaschine, Trockner sowie Heiz- und Elektrotechnik. Zudem steht eine überdachte Abstellhütte (ca. 15 m²) zur Verfügung – ideal für Vorräte oder Gartengeräte.
Lage
Hellweg59505 Bad Sassendorf
Bad Sassendorf
Der aktuelle durchschnittliche Quadratmeterpreis beträgt 10,53 €/m² in Bad Sassendorf.
                                                            Mit Mietspiegel
                                    Bad-Sassendorf vergleichen
                                                    
                                    Was kostet dein Umzug?
Du planst einen Umzug? Finde jetzt die günstigste Umzugsfirma in deiner Region!
                        Umzugskosten berechnen                    Schütze dich vor Betrug!
                            Leiste keinerlei Zahlung im Vorraus!
                            
Beachte unsere Sicherheitshinweise zum Thema Immobilienbetrug und lies, woran du solche Anzeigen erkennen kannst und wie du dich vor Betrügern schützt.
                        Anzeige melden                    Beachte unsere Sicherheitshinweise zum Thema Immobilienbetrug und lies, woran du solche Anzeigen erkennen kannst und wie du dich vor Betrügern schützt.
            *Anzeige
            
        
        
        Ähnliche Häuser bei ImmoScout24
Bad Sassendorf
            - Miete
 - 1.500 €
 
- Zimmer
 - 6 Zi.
 
- Fläche
 - 150 Zi.
 
Weitere Ergebnisse für:
                Wohnungen
                    Bad Sassendorf;
                Immobilien
                    Bad Sassendorf;
                Haus mieten
                    Bad Sassendorf;
                                    WG Zimmer
                        Bad Sassendorf;
                                Wohnung
                    Bad Sassendorf kaufen;
                Haus kaufen
                    Bad Sassendorf;
                                    Immobilienpreise
                        Bad Sassendorf                                                    Mietspiegel
                        Bad Sassendorf                                wohnungsboerse.net übernimmt keine Gewähr für von Dritten gemachte Angaben