
Etagenwohnung in Wiesbaden-Dotzheim
gut geschnittene, helle 3-Zimmer-Wohnung mit Balkon im 2. OG in Wiesbaden-Dotzheim
auf der Karte ansehenUmzugskosten berechnen
- Kaltmiete
- 1.290 €
- Zimmer
- 3
- Fläche
- 84 m²
6 Aufrufe
Objekt-ID: 38848931
| Objekttyp: | Etagenwohnung |
| Zimmer: | 3 |
| Größe: | 84.00 m² |
| Etage: | 2 von 3 |
| Frei ab: | keine Angabe |
Preise & Kosten
| Kaltmiete: | 1.290 € |
| Nebenkosten: | 390 € |
| Gesamtmiete: |
1.680 € |
| Preis/m²: | 15,36 € |
| Mit Mietspiegel Wiesbaden vergleichen | |
| Kaution: | k.A. |
Immobilie
Balkon
Einbauküche
Aufzug
Keller
Behindertengerecht
| Baujahr: | 2004 |
| Befeuerungsart: | Gas |
| Energieausweis: | Verbrauchsausweis |
| Endenergiebedarf: | 83,00 kWh/(m²*a) |
| Energieeffizienzklasse: | C |
Objektbeschreibung
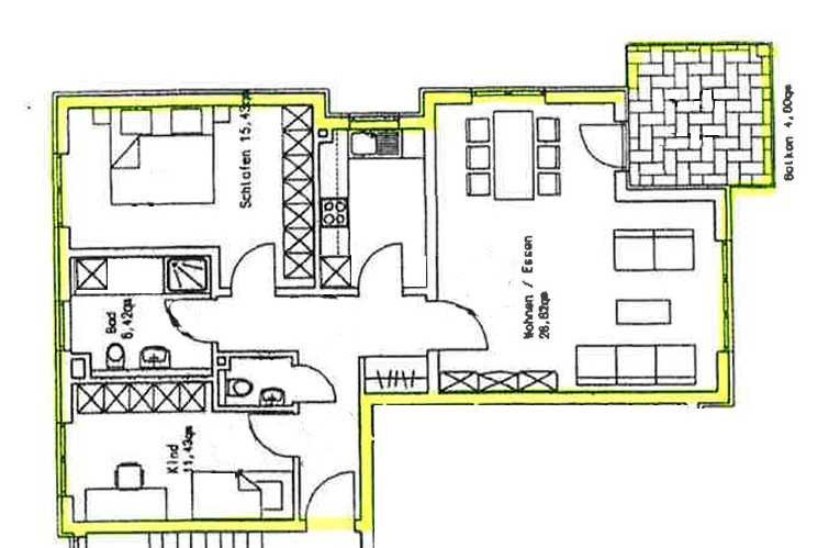
Top gepflegte, gut geschnittene, helle 3-Zimmer-Wohnung (BJ 2004) mit 84 m² in Wiesbaden mit Aufzug, Fußbodenheizung, schönem Balkon, hochwertige Einbauküche mit guten Geräten und Auszugschränken, Gäste-WC, Tageslichtbad und Balkon – in Nähe zum Dotzheimer Bahnhof
Diese helle und freundliche Wohnung liegt im 2. OG und hat einen Aufzug bis in die Tiefgarage und den zugehörigen Keller.
Die Wohnung sowie die gesamte Immobilie samt Außenanlage sind in einem sehr gepflegten Zustand. Die Fassade wurde ca. 2016 neu angestrichen.
Die Wohnung wurde frisch renoviert und ist direkt bezugsfähig.
Es gibt einen eigenen Tiefgaragenstellplatz, einen eigenen Kellerraum, einen Fahrradraum in der Tiefgarage sowie einen Wasch- und Trockenraum für die eigene Waschmaschine und Trockner. Auch im Badezimmer ist ein Waschmaschinenstellplatz.
Ausstattung: Parkettboden, Fliesen, Fußbodenheizung, elektrische Rollläden, elektrische Markise, Tageslichtbad mit Dusche, Gäste-WC, Waschmaschinen und Trockneranschluss im Bad, Gegensprechanlage, bodentiefe Fenster, raumhohe Fliesen in Badezimmer und Gäste-WC, Küche mit Auszügen, Einbauschrank
Lage: nur ca. 280 m von der nächsten Bushaltestelle (Dotzheimer Bahnhof) entfernt und ca. 3,8 km vom Hauptbahnhof entfernt.
Bei Interesse melden Sie sich bitte mit einer aussagekräftigen Nachricht.
Vor Unterzeichnung des Mietvertrags benötigte Unterlagen: Mieterselbstauskunft, SCHUFA oder gleichwertige Bonitätsauskunft, Gehaltsnachweise der letzten 3 Monate.
Diese helle und freundliche Wohnung liegt im 2. OG und hat einen Aufzug bis in die Tiefgarage und den zugehörigen Keller.
Die Wohnung sowie die gesamte Immobilie samt Außenanlage sind in einem sehr gepflegten Zustand. Die Fassade wurde ca. 2016 neu angestrichen.
Die Wohnung wurde frisch renoviert und ist direkt bezugsfähig.
Es gibt einen eigenen Tiefgaragenstellplatz, einen eigenen Kellerraum, einen Fahrradraum in der Tiefgarage sowie einen Wasch- und Trockenraum für die eigene Waschmaschine und Trockner. Auch im Badezimmer ist ein Waschmaschinenstellplatz.
Ausstattung: Parkettboden, Fliesen, Fußbodenheizung, elektrische Rollläden, elektrische Markise, Tageslichtbad mit Dusche, Gäste-WC, Waschmaschinen und Trockneranschluss im Bad, Gegensprechanlage, bodentiefe Fenster, raumhohe Fliesen in Badezimmer und Gäste-WC, Küche mit Auszügen, Einbauschrank
Lage: nur ca. 280 m von der nächsten Bushaltestelle (Dotzheimer Bahnhof) entfernt und ca. 3,8 km vom Hauptbahnhof entfernt.
Bei Interesse melden Sie sich bitte mit einer aussagekräftigen Nachricht.
Vor Unterzeichnung des Mietvertrags benötigte Unterlagen: Mieterselbstauskunft, SCHUFA oder gleichwertige Bonitätsauskunft, Gehaltsnachweise der letzten 3 Monate.
Lage
Helen-Keller-Straße65199 Wiesbaden
Wiesbaden Dotzheim
Der aktuelle durchschnittliche Quadratmeterpreis beträgt 15,45 €/m² in Wiesbaden - Dotzheim. Der durchschnittliche Quadratmeterpreis in Wiesbaden liegt derzeit bei 14,48 €/m².
Mit Mietspiegel
Wiesbaden vergleichen
Was kostet dein Umzug?
Du planst einen Umzug? Finde jetzt die günstigste Umzugsfirma in deiner Region!
Umzugskosten berechnen Schütze dich vor Betrug!
Leiste keinerlei Zahlung im Vorraus!
Beachte unsere Sicherheitshinweise zum Thema Immobilienbetrug und lies, woran du solche Anzeigen erkennen kannst und wie du dich vor Betrügern schützt.
Anzeige melden Beachte unsere Sicherheitshinweise zum Thema Immobilienbetrug und lies, woran du solche Anzeigen erkennen kannst und wie du dich vor Betrügern schützt.
*Anzeige
Ähnliche Wohnungen bei ImmoScout24
Wiesbaden-Dotzheim
- Miete
- 1.150 €
- Zimmer
- 3 Zi.
- Fläche
- 75 Zi.
Weitere Ergebnisse für:
Wohnungen
Wiesbaden;
Immobilien
Wiesbaden;
Haus mieten
Wiesbaden;
WG Zimmer
Wiesbaden;
Wohnung
Wiesbaden kaufen;
Haus kaufen
Wiesbaden;
Immobilienpreise
Wiesbaden Mietspiegel
Wiesbaden wohnungsboerse.net übernimmt keine Gewähr für von Dritten gemachte Angaben