Etagenwohnung in Herne-Holsterhausen
Ihr neues Zuhause - 3 Zimmer in Top Lage
auf der Karte ansehenUmzugskosten berechnen
- Kaltmiete
- 700 €
- Zimmer
- 3
- Fläche
- 85 m²
117 Aufrufe
Objekt-ID: 38883960
| Objekttyp: | Etagenwohnung |
| Zimmer: | 3 |
| Größe: | 85.00 m² |
| Etage: | 1 |
| Frei ab: | 01.01.2026 |
Preise & Kosten
| Kaltmiete: | 700 € |
| Nebenkosten: | 105 € |
| Heizungskosten: | 105 € |
| Gesamtmiete: |
910 € |
| Preis/m²: | 8,24 € |
| Mit Mietspiegel Herne vergleichen | |
| Ablöse: | 0 € |
| Kaution: | 1200 |
Immobilie
Keller
Altbau
| Baujahr: | 1928 |
| Objektzustand: | gepflegt |
| Befeuerungsart: | Gas |
| Energieausweis: | Energieausweis in Vorbereitung |
Objektbeschreibung
Dies ist keine Standard-Mietwohnung. Sie wurde komplett saniert und bietet Ihnen maximalen Stressabbau. Koffer packen, Möbel stellen, fertig!
Suchen Sie nach einem Zuhause, das Ruhe, Qualität und perfekte Raumaufteilung garantiert? Dann sichern Sie sich jetzt diese lichtdurchflutete 3-Zimmer-Wohnung (1. OG rechts) in der Beckumer Straße 24 (44625 Herne).
Die 3 KNALLHARTEN Fakten, die Ihnen bares Geld sparen:
NEUWERTIG SANIERT & SOFORT FREI: Sie sparen sich wochenlangen Renovierungsaufwand und Tausende Euro an Materialkosten. Alle Arbeiten sind erledigt – keine Malerarbeiten, keine Böden legen. Einziehen und leben.
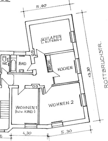
Perfekter Schnitt – Maximale Helligkeit: 87 m² verteilt auf 3 Zimmer. Durch den zentralen Flur sind alle Zimmer (2x Schlafzimmer, 1x Wohnzimmer) getrennt und optimal nutzbar. JEDER Raum besitzt ein Fenster!
Wellness-Details & Luxus-Plus: Großes Tageslicht-Bad mit entspannender Badewanne PLUS separates Gäste-WC (beide mit Fenster). Schluss mit dem morgendlichen Bad-Stau!
Wichtiger Hinweis zur Besichtigung – Ihre Chance zählt jetzt!
Die Wohnung ist aktuell noch bewohnt, was die Harmonie im Haus unterstreicht. Um die Privatsphäre der jetzigen Mieter zu respektieren, ist eine Besichtigung ausschließlich nach vorheriger, individueller Absprache mit diesen möglich. Bitte planen Sie dies ein.
Wichtiger Filter: Unsere Anforderung an Sie
Diese Wohnung ist Teil eines sehr ruhigen und gepflegten Hauses. Wir suchen langfristige Mieter, die Wert auf einen harmonischen Ha
Suchen Sie nach einem Zuhause, das Ruhe, Qualität und perfekte Raumaufteilung garantiert? Dann sichern Sie sich jetzt diese lichtdurchflutete 3-Zimmer-Wohnung (1. OG rechts) in der Beckumer Straße 24 (44625 Herne).
Die 3 KNALLHARTEN Fakten, die Ihnen bares Geld sparen:
NEUWERTIG SANIERT & SOFORT FREI: Sie sparen sich wochenlangen Renovierungsaufwand und Tausende Euro an Materialkosten. Alle Arbeiten sind erledigt – keine Malerarbeiten, keine Böden legen. Einziehen und leben.
Perfekter Schnitt – Maximale Helligkeit: 87 m² verteilt auf 3 Zimmer. Durch den zentralen Flur sind alle Zimmer (2x Schlafzimmer, 1x Wohnzimmer) getrennt und optimal nutzbar. JEDER Raum besitzt ein Fenster!
Wellness-Details & Luxus-Plus: Großes Tageslicht-Bad mit entspannender Badewanne PLUS separates Gäste-WC (beide mit Fenster). Schluss mit dem morgendlichen Bad-Stau!
Wichtiger Hinweis zur Besichtigung – Ihre Chance zählt jetzt!
Die Wohnung ist aktuell noch bewohnt, was die Harmonie im Haus unterstreicht. Um die Privatsphäre der jetzigen Mieter zu respektieren, ist eine Besichtigung ausschließlich nach vorheriger, individueller Absprache mit diesen möglich. Bitte planen Sie dies ein.
Wichtiger Filter: Unsere Anforderung an Sie
Diese Wohnung ist Teil eines sehr ruhigen und gepflegten Hauses. Wir suchen langfristige Mieter, die Wert auf einen harmonischen Ha
Lage
Beckumer Strasse44625 Herne
Herne Holsterhausen
Der aktuelle durchschnittliche Quadratmeterpreis beträgt 7,69 €/m² in Herne - Holsterhausen. Der durchschnittliche Quadratmeterpreis in Herne liegt derzeit bei 7,84 €/m².
Mit Mietspiegel
Herne vergleichen
Was kostet dein Umzug?
Du planst einen Umzug? Finde jetzt die günstigste Umzugsfirma in deiner Region!
Umzugskosten berechnen Schütze dich vor Betrug!
Leiste keinerlei Zahlung im Vorraus!
Beachte unsere Sicherheitshinweise zum Thema Immobilienbetrug und lies, woran du solche Anzeigen erkennen kannst und wie du dich vor Betrügern schützt.
Anzeige melden Beachte unsere Sicherheitshinweise zum Thema Immobilienbetrug und lies, woran du solche Anzeigen erkennen kannst und wie du dich vor Betrügern schützt.
*Anzeige
Ähnliche Wohnungen bei ImmoScout24
Herne-Holsterhausen
- Miete
- 550 €
- Zimmer
- 3 Zi.
- Fläche
- 75 Zi.
Anbieter
privater AnbieterWeitere Ergebnisse für:
Wohnungen
Herne;
Immobilien
Herne;
Haus mieten
Herne;
WG Zimmer
Herne;
Wohnung
Herne kaufen;
Haus kaufen
Herne;
Immobilienpreise
Herne Mietspiegel
Herne wohnungsboerse.net übernimmt keine Gewähr für von Dritten gemachte Angaben





