
Wohnung in Schallstadt
4-Zimmer Wohnung ohne Balkon in Mengen
auf der Karte ansehenUmzugskosten berechnen
- Kaltmiete
- 1.500 €
- Zimmer
- 4
- Fläche
- 144 m²
4 Aufrufe
Objekt-ID: 38990106
| Objekttyp: | Keine Angabe |
| Zimmer: | 4 |
| Größe: | 144.00 m² |
| Etage: | 1 von 1 |
| Frei ab: | 1.12.2025 |
Preise & Kosten
| Kaltmiete: | 1.500 € |
| Nebenkosten: | 350 € |
| Gesamtmiete: |
1.850 € |
| Preis/m²: | 10,42 € |
| Mit Mietspiegel Schallstadt vergleichen | |
| Kaution: | k.A. |
Immobilie
Balkon
Einbauküche
Keller
Tiere erlaubt
| Befeuerungsart: | Holzpellets |
| Energieausweis: | liegt vor |
Objektbeschreibung
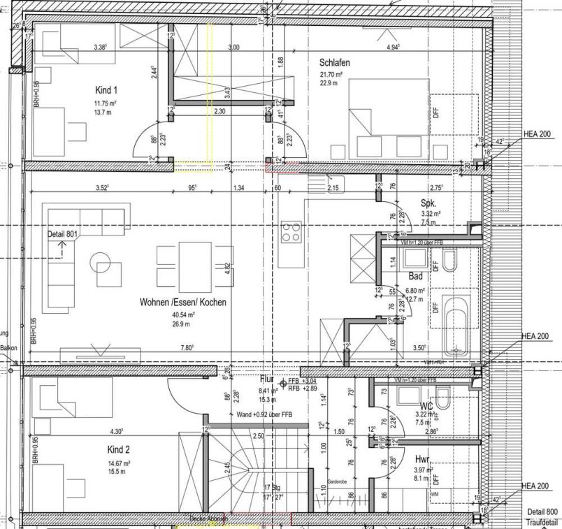
Diese schöne 4-Zimmer Wohnung mit ca. 144 m² Wohnfläche befindet sich im 1. Obergeschoss in Mengen. Die Wohnung verfügt über eine gehobene Ausstattung und bietet ausreichend Platz für Familien oder Wohngemeinschaften, da sie WG-geeignet ist. Ein Gäste-WC, Hauswirtschaftsraum, Speisekammer sowie ein Tageslicht Badezimmer mit Badewanne und Dusche sind vorhanden. Eine moderne Einbauküche ist vorhanden und die Beheizung erfolgt über eine zentrale Heizung, deren Kosten nicht separat ausgewiesen sind. Ein eigener Abstellraum bietet zusätzlichen Stauraum. Die Wohnung wird ab dem 1.12.2025 als Erstbezug verfügbar sein. Haustiere sind nach Absprache erlaubt. Eine Garage ist ebenfalls vorhanden.
Lage
79227 SchallstadtSchallstadt
Der aktuelle durchschnittliche Quadratmeterpreis beträgt 13,84 €/m² in Schallstadt.
Mit Mietspiegel
Schallstadt vergleichen
Was kostet dein Umzug?
Du planst einen Umzug? Finde jetzt die günstigste Umzugsfirma in deiner Region!
Umzugskosten berechnen Schütze dich vor Betrug!
Leiste keinerlei Zahlung im Vorraus!
Beachte unsere Sicherheitshinweise zum Thema Immobilienbetrug und lies, woran du solche Anzeigen erkennen kannst und wie du dich vor Betrügern schützt.
Anzeige melden Beachte unsere Sicherheitshinweise zum Thema Immobilienbetrug und lies, woran du solche Anzeigen erkennen kannst und wie du dich vor Betrügern schützt.
*Anzeige
Ähnliche Wohnungen bei ImmoScout24
Schallstadt
- Miete
- 1.350 €
- Zimmer
- 4 Zi.
- Fläche
- 135 Zi.
Weitere Ergebnisse für:
Wohnungen
Schallstadt;
Immobilien
Schallstadt;
Haus mieten
Schallstadt;
WG Zimmer
Schallstadt;
Wohnung
Schallstadt kaufen;
Haus kaufen
Schallstadt;
Immobilienpreise
Schallstadt Mietspiegel
Schallstadt wohnungsboerse.net übernimmt keine Gewähr für von Dritten gemachte Angaben