
Dachgeschosswohnung in Leidersbach
Attika-Wohnung mit 4 Zimmern und Balkon in Leidersbach
auf der Karte ansehenUmzugskosten berechnen
- Kaltmiete
- 1.390 €
- Zimmer
- 4
- Fläche
- 139.5 m²
2 Aufrufe
Objekt-ID: 39006812
| Objekttyp: | Dachgeschosswohnung |
| Zimmer: | 4 |
| Größe: | 139.50 m² |
| Etage: | 2 von 2 |
| Frei ab: | 1.2.2026 |
Preise & Kosten
| Kaltmiete: | 1.390 € |
| Nebenkosten: | 430 € |
| Gesamtmiete: |
1.820 € |
| Preis/m²: | 9,96 € |
| Mit Mietspiegel Leidersbach vergleichen | |
| Kaution: | k.A. |
Immobilie
Balkon
Einbauküche
Keller
| Baujahr: | 1996 |
| Befeuerungsart: | Gas |
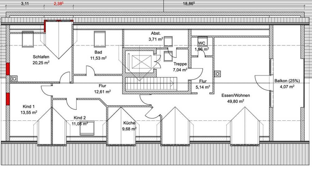
Objektbeschreibung
Diese attraktive 4-Zimmer-Attika-Wohnung mit ca. 139,5 m² Wohnfläche befindet sich im 2. Obergeschoss und bietet einen großzügigen Wohnkomfort. Die Wohnung verfügt über einen Balkon, der zum Entspannen einlädt, sowie eine hochwertige Ausstattung. Ein Gäste-WC und ein Keller bieten zusätzlichen Stauraum. Zwei Außenstellplätze ist ebenfalls vorhanden. Die Wohnung wird ab dem 01.02.2026 verfügbar sein. Haustiere sind nicht gestattet.
Lage
Hauptstraße63849 Leidersbach
Leidersbach
Der aktuelle durchschnittliche Quadratmeterpreis beträgt 9,33 €/m² in Leidersbach.
Mit Mietspiegel
Leidersbach vergleichen
Was kostet dein Umzug?
Du planst einen Umzug? Finde jetzt die günstigste Umzugsfirma in deiner Region!
Umzugskosten berechnen Schütze dich vor Betrug!
Leiste keinerlei Zahlung im Vorraus!
Beachte unsere Sicherheitshinweise zum Thema Immobilienbetrug und lies, woran du solche Anzeigen erkennen kannst und wie du dich vor Betrügern schützt.
Anzeige melden Beachte unsere Sicherheitshinweise zum Thema Immobilienbetrug und lies, woran du solche Anzeigen erkennen kannst und wie du dich vor Betrügern schützt.
*Anzeige
Ähnliche Wohnungen bei ImmoScout24
Leidersbach
- Miete
- 1.250 €
- Zimmer
- 4 Zi.
- Fläche
- 130 Zi.
Weitere Ergebnisse für:
Wohnungen
Leidersbach;
Immobilien
Leidersbach;
Haus mieten
Leidersbach;
WG Zimmer
Leidersbach;
Wohnung
Leidersbach kaufen;
Haus kaufen
Leidersbach;
Immobilienpreise
Leidersbach Mietspiegel
Leidersbach wohnungsboerse.net übernimmt keine Gewähr für von Dritten gemachte Angaben