
Etagenwohnung in Beuren (Hochwald)
Großzügige, helle und neu renovierte Wohnung in Beuren Hochwald 107 m2
auf der Karte ansehenUmzugskosten berechnen
- Kaltmiete
- 800 €
- Zimmer
- 3
- Fläche
- 107 m²
8 Aufrufe
Objekt-ID: 39009670
| Objekttyp: | Etagenwohnung |
| Zimmer: | 3 |
| Größe: | 107.00 m² |
| Etage: | 1 von 1 |
| Frei ab: | nach Absprache |
Preise & Kosten
| Kaltmiete: | 800 € |
| Nebenkosten: | 300 € |
| Gesamtmiete: |
1.100 € |
| Preis/m²: | 7,48 € |
| Kaution: | k.A. |
Immobilie
Balkon
Garten
Keller
| Baujahr: | 1088 |
| Befeuerungsart: | Zentralheizung |
| Energieausweis: | Bedarfsausweis |
| Endenergiebedarf: | 187,30 kWh/(m²*a) |
| Energieeffizienzklasse: | F |
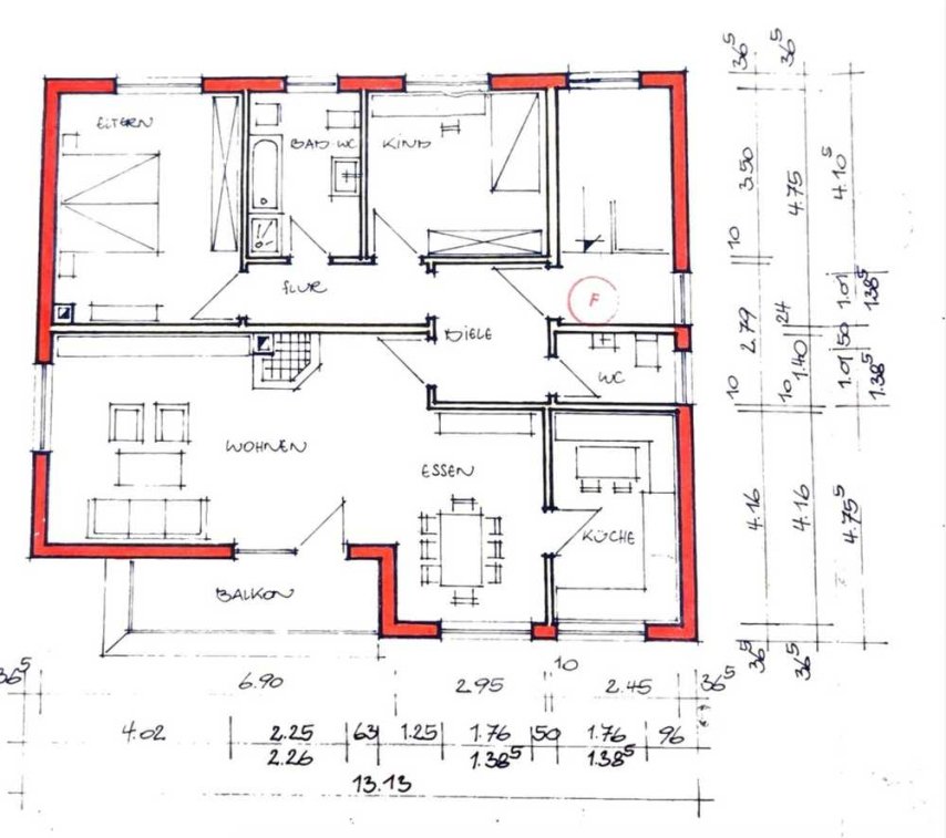
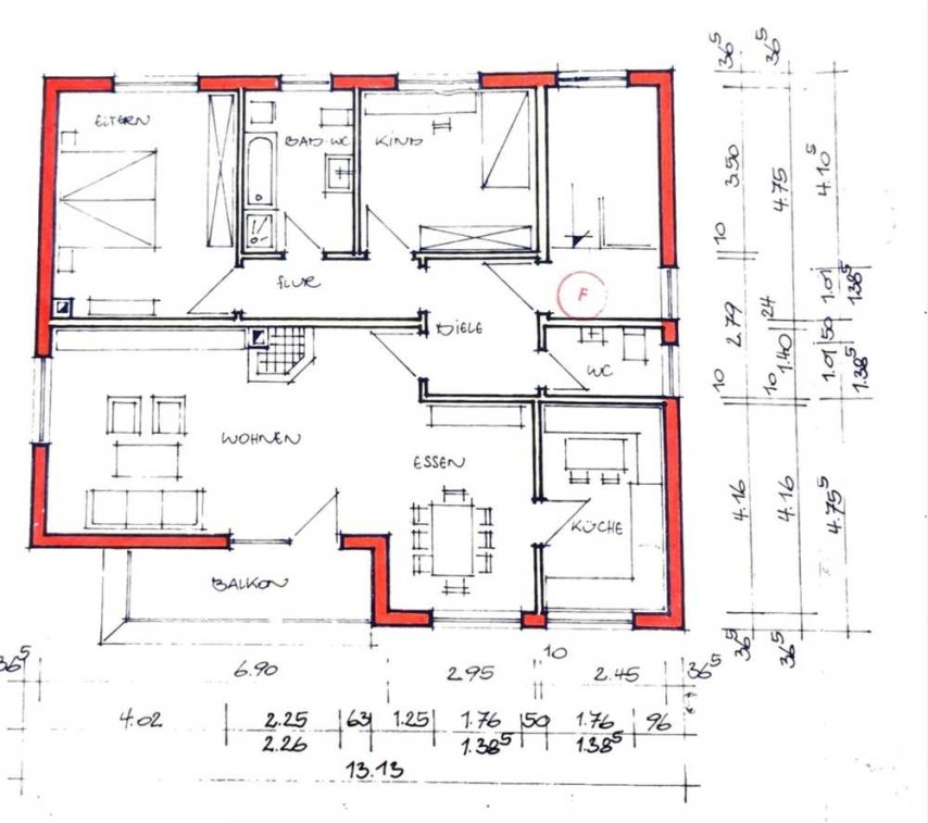
Objektbeschreibung
Ab ca. Februar 2026 steht eine großzügige Wohnung in 54413 Beuren (Hochwald) zur Vermietung. Die Wohnung befindet sich im 1. OG in einem Mehrfamilienhaus Zentral gelegen.
Die Wohnung hat eine Wohnfläche von 107m2 und teilt sich wie folgt auf:
1 grosses Wohn/Esszimmer
2 Schlafzimmer
1 Küche
1 Bad
1 Gäste WC
Balkon
1 Kellerraum
1 Garage
Die Wohnung wird zur Zeit renoviert und Wünsche können zeitnah noch berücksichtigt werden.
Zur Zeit wird die Wohnung noch mit einer Ölzentralheizung beheizt, welche aber im Laufe des kommenden Jahres in eine Luft-Wasser-Wärmepumpe ersetzt wird! (Nebenkostenreduzierung möglich)
Eine Einbauküche gehört nicht dazu, und müsste selbst erworben oder mitgebracht werden.
Haustierhaltung ist nicht grundsätzlich verboten, muss aber vorab abgesprochen werden. Max. ein Haustier.
Die Wohnung hat eine Wohnfläche von 107m2 und teilt sich wie folgt auf:
1 grosses Wohn/Esszimmer
2 Schlafzimmer
1 Küche
1 Bad
1 Gäste WC
Balkon
1 Kellerraum
1 Garage
Die Wohnung wird zur Zeit renoviert und Wünsche können zeitnah noch berücksichtigt werden.
Zur Zeit wird die Wohnung noch mit einer Ölzentralheizung beheizt, welche aber im Laufe des kommenden Jahres in eine Luft-Wasser-Wärmepumpe ersetzt wird! (Nebenkostenreduzierung möglich)
Eine Einbauküche gehört nicht dazu, und müsste selbst erworben oder mitgebracht werden.
Haustierhaltung ist nicht grundsätzlich verboten, muss aber vorab abgesprochen werden. Max. ein Haustier.
Was kostet dein Umzug?
Du planst einen Umzug? Finde jetzt die günstigste Umzugsfirma in deiner Region!
Umzugskosten berechnen Schütze dich vor Betrug!
Leiste keinerlei Zahlung im Vorraus!
Beachte unsere Sicherheitshinweise zum Thema Immobilienbetrug und lies, woran du solche Anzeigen erkennen kannst und wie du dich vor Betrügern schützt.
Anzeige melden Beachte unsere Sicherheitshinweise zum Thema Immobilienbetrug und lies, woran du solche Anzeigen erkennen kannst und wie du dich vor Betrügern schützt.
*Anzeige
Ähnliche Wohnungen bei ImmoScout24
Beuren (Hochwald)
- Miete
- 650 €
- Zimmer
- 3 Zi.
- Fläche
- 100 Zi.
Anbieter
Weitere Ergebnisse für:
Wohnungen
Beuren (Hochwald);
Immobilien
Beuren (Hochwald);
Haus mieten
Beuren (Hochwald);
WG Zimmer
Beuren (Hochwald);
Wohnung
Beuren (Hochwald) kaufen;
Haus kaufen
Beuren (Hochwald);
Immobilienpreise
Beuren (Hochwald) wohnungsboerse.net übernimmt keine Gewähr für von Dritten gemachte Angaben